Nhà xưởng chuyên sản xuất ống gió tại vũng tàu.
- 831 đường 2 tháng 9, P.11, Tp.Vũng Tàu
- 02543.848.003
- info@gnair.vn
- sanxuatonggio.com.vn
- gnair.vn
Công Ty TNHH Cơ Điện Lạnh Gia Nguyễn
Hotline:
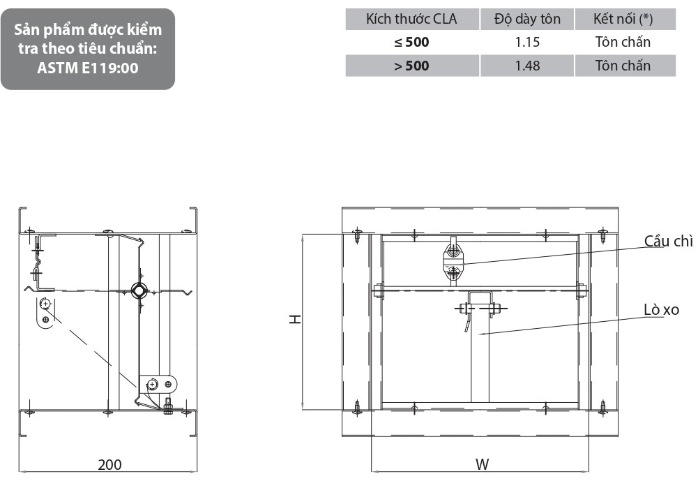
0979.007.003- Mặt bích: tole hình L hoặc bích V (theo yêu cầu).
- Kết cấu: có lò xo hỗ trợ đóng nhanh, có thể tháo lắp thay thế cầu chì.
- Công dụng: Ngăn lan truyền lửa hay dòng khí nóng quá 740C.
- Vị trí lắp: gắn trên đường ống gió chữ nhật hoặc giữa vách tường.
- Vật liệu: tole mạ kẽm dầy 1.15; 1.48 mm.

Bảng vẽ Van chặn lửa chữ nhật CLA.
THÔNG TIN LIÊN HỆ:
Công Ty TNHH Cơ Điện Lạnh Gia Nguyễn
Địa Chỉ: 831 đường 2 tháng 9, P.11, Tp.Vũng Tàu
Điện Thoại:0979.007.003 - 02543.848.003
Website:https://gnair.vn/ và https://sanxuatonggio.com.vn/